• Venta
  • Publicada hace 0 días

Excelente Bodega Industrial en Venta – Vallejo

Poniente 150 820 , Industrial Vallejo, 02300, CDMX, Azcapotzalco, CDMX.

MN$140,000,000

$m²: 18,332

ID: 47669

Descripción

Ubicada en Poniente 150 No. 820, Industrial Vallejo, una de las zonas logísticas más estratégicas de la CDMX.
• Superficie de terreno: 5,956 m²
• Área de bodega: 5,321.61 m²
• Área de oficinas: 1,610.98 m²
• Área de patio de maniobras: 704.37 m²
• Alturas: 4 – 6mts
Espacios amplios, funcionales y listos para potenciar tu operación en el corazón industrial de la ciudad.
Calle pavimentada con concreto hidráulico y en excelente estado.
Ideal para empresas de logística, distribución y manufactura.

Especificaciones

Construido

7,637 m²

Terreno

5,956 m²

Características principales

Bodega
Doble filtro de acceso
Seguridad Privada y Vigilancia

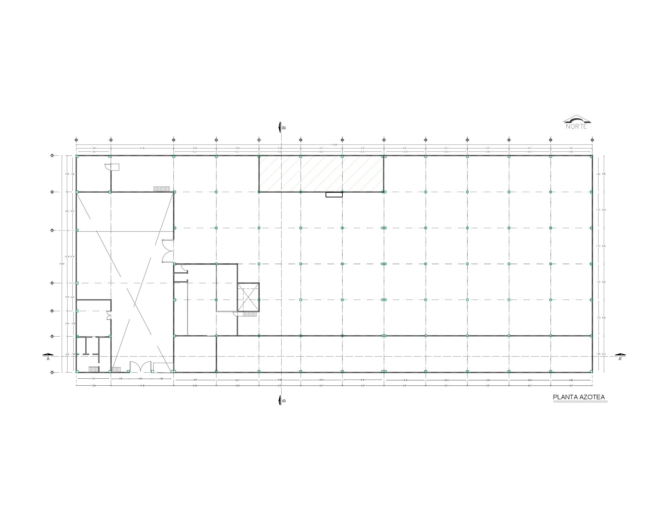
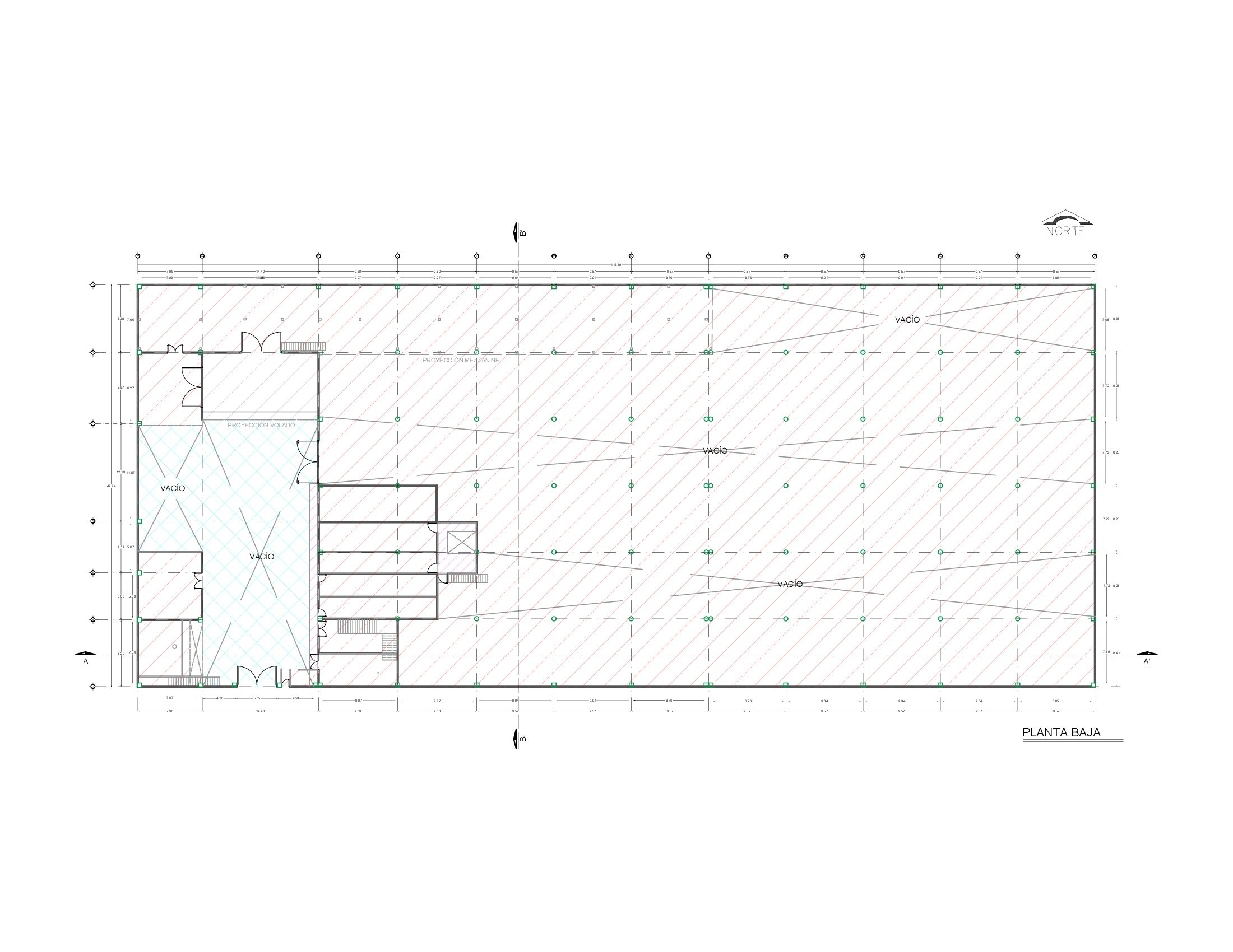
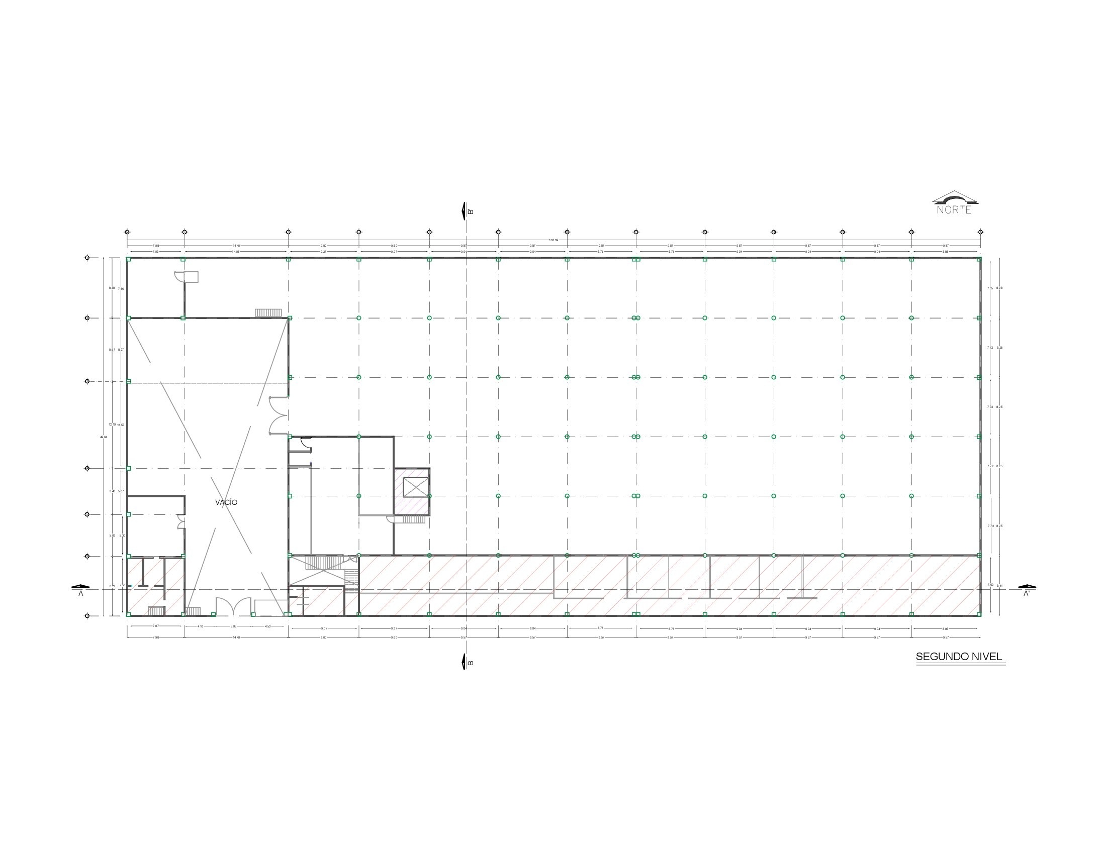
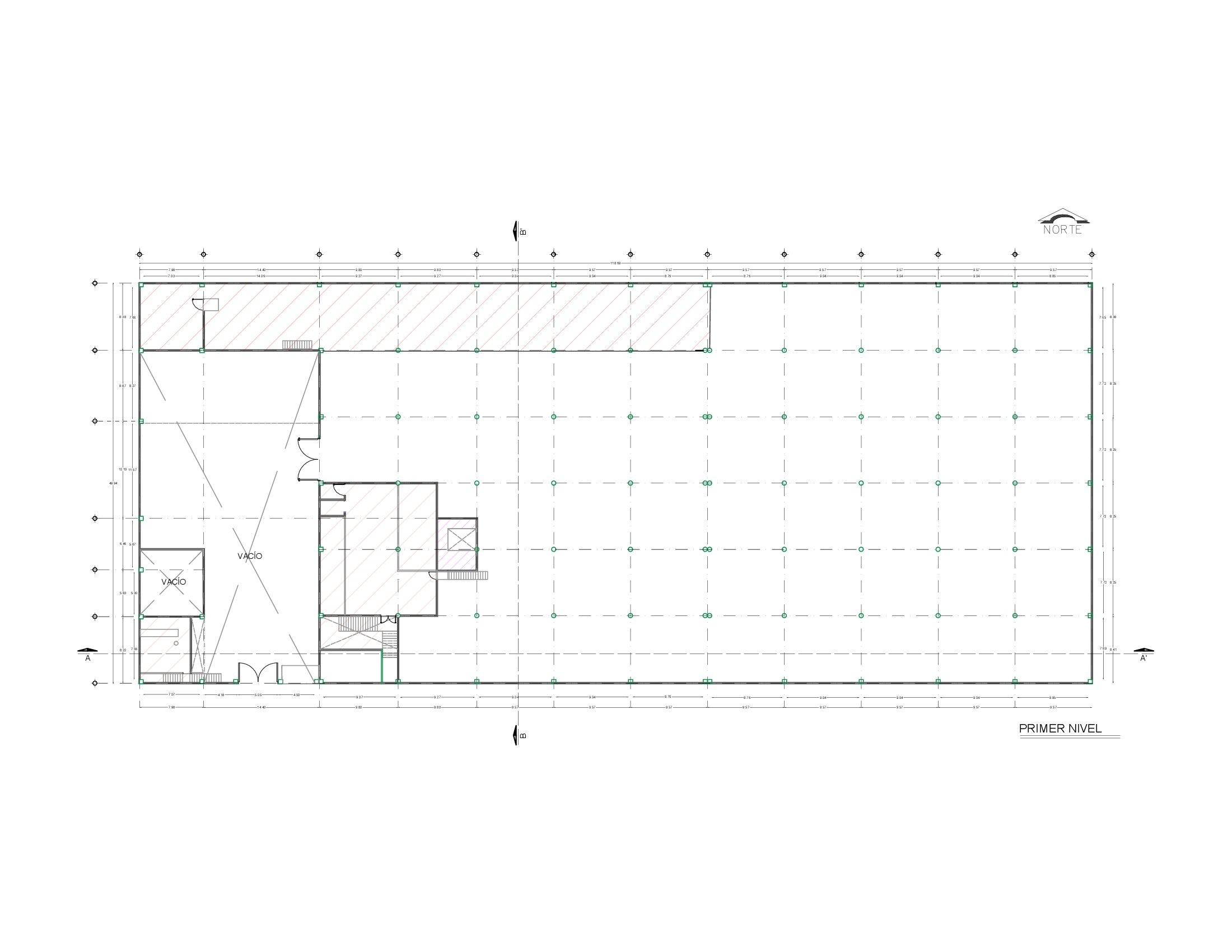
Planos de plantas

Nivel 1

Planta
Planta
Planta
Planta
Planta

Ubicación

Poniente 150 820 Industrial Vallejo
CDMX Azcapotzalco CDMX 02300

                        

Descarga de información

Teaser Poniente 150 820-Vallejo.pdf

Descargar

Propiedades destacadas

ID: 47665
Venta
  • ID: 47665

Terreno Estratégico en Venta – Rincón de Arboledas, Ciudad de Puebla

Rincón de Arboledas Pte. S/N

  • 0
  • 0
  • 28,419m²
  • 0
ID: 47662
Venta
  • ID: 47662

Venta de Predio C-5 dentro del Parque Industrial Opción, Gto.

Av. Ing. Antonio Gutiérrez Cortina 10

  • 0
  • 0
  • 114,058m²
  • 0
ID: 47666
Venta
  • ID: 47666

Venta de Predio C-6 dentro del Parque Industrial Opción, Gto.

Av. Ing. Antonio Gutiérrez Cortina 10

  • 0
  • 0
  • 89,690m²
  • 0
ID: 47629
Renta
  • ID: 47629

Sadi Carnot Terreno

Sadi Carnot 33

  • 0
  • 0
  • 2,260m²
  • 0